152 Parkview Avenue
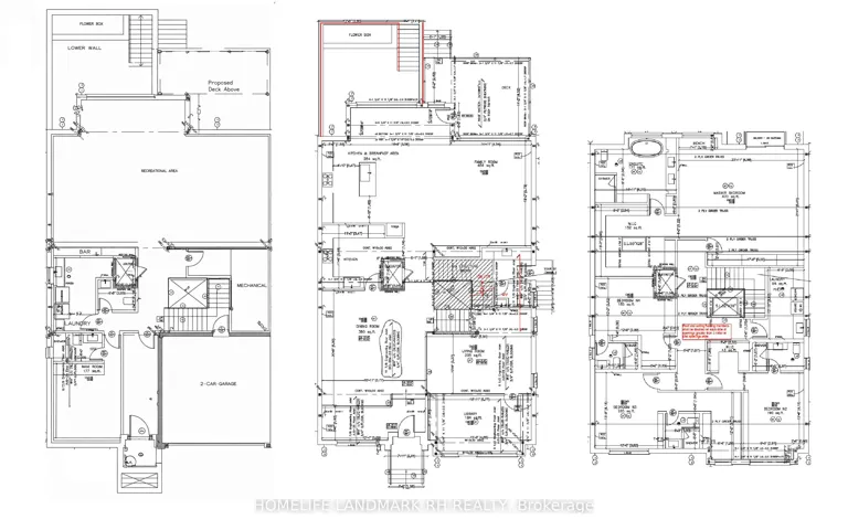
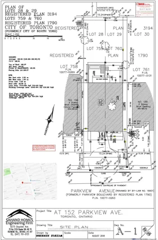
Detached Bungalow In High Demand Location In North York – Willowdale! Build Your Dream Home @ 50 X 155 Feet Large Lot. Building Permit Ready With Drawing ( 4674 S.F + Basement ) , Steps To Park, School & Public Transit. Close To Yonge, Sheppard & Finch, Civic Centre & All Amenities. Good For End User & Investor. ** Drawings Provided By Seller, Just For Reference** ** High Ranking Earl Haig Secondary School ** Steps To Park & Public Transit. Close To Subway Station, Shopping, Library & Restaurants. Mins To Hospital, Hwy401 & 404…
This is a common note that can be displayed on all properties but controlled from one simple option.
Immerse yourself in the captivating ambiance of our properties. Book a personalized tour to explore the exquisite beauty and unique features of our property.
Our knowledgeable staff will guide you through the property, answering any questions you may have.
$6,000,000.00
Added: December 31, 2025
$2,498,000.00
Added: January 23, 2026
$1,989,000.00
Added: December 9, 2025
Owning a home is a keystone of wealth… both financial affluence and emotional security.
Suze Orman