734 Shaw Street
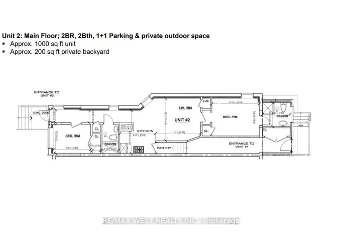
A smart, stylish investment in the heart of Little Italy. This fully rebuilt home offers nearly 3,800 total sq ft including basement of luxury living across 3 finished units with separate entrances, hydro, HVAC, laundry, and kitchens. High-end finishes, custom millwork, Sub-Zero/Wolf appliances, and spa-like baths add turnkey appeal. Ideal for portfolio investors, multi-generation or live-in owners – occupy one unit and let the others cash flow. Steps to Bloor, TTC, U of T, and Ossington’s best restaurants. Truly one of Toronto’s most thoughtful multi-unit redevelopments.
This is a common note that can be displayed on all properties but controlled from one simple option.
Immerse yourself in the captivating ambiance of our properties. Book a personalized tour to explore the exquisite beauty and unique features of our property.
Our knowledgeable staff will guide you through the property, answering any questions you may have.
$1,575,000.00
Added: April 9, 2026
$1,880,000.00
Added: April 10, 2026
$1,299,000.00
Added: April 10, 2026
Owning a home is a keystone of wealth… both financial affluence and emotional security.
Suze Orman