219 E Dundas E Street
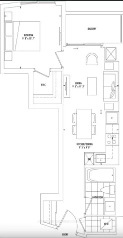
One-bedroom unit at desirable In.De Condo by Menkes. Functional layout with bright primary bedroom featuring oversized windows and a walk-in closet. Open-concept living/dining with balcony access. Includes stove, fridge, dishwasher, microwave, and ensuite laundry with stacked washer/dryer. Prime location steps to TMU, OCAD, George Brown, Eaton Centre, Financial District, and streetcar at your doorstep. One Locker Included in Selling Price. Locker Mgmt Fee is $37.68 per month.
This is a common note that can be displayed on all properties but controlled from one simple option.
Immerse yourself in the captivating ambiance of our properties. Book a personalized tour to explore the exquisite beauty and unique features of our property.
Our knowledgeable staff will guide you through the property, answering any questions you may have.
$350,000.00
Added: December 13, 2025
$750,000.00
Added: January 6, 2026
$499,000.00
Added: January 2, 2026
Owning a home is a keystone of wealth… both financial affluence and emotional security.
Suze Orman