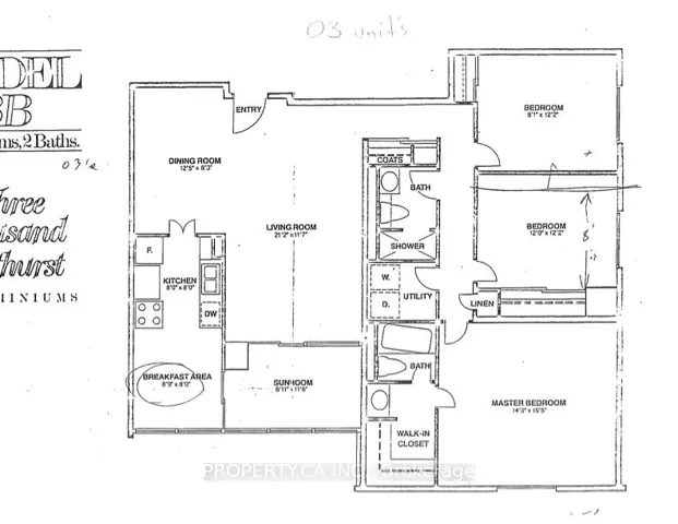
3000 Bathurst Street
Rare 3-Bedroom Corner Unit With 2 Parking Spaces. 1400+ Sqft corner unit featuring 3 generous sized bedrooms, and 2 full bathrooms. Bright layout with sunny South exposure, clear views, and large windows throughout. Generous living/dining area, and eat kitchen provide the perfect space for a large family and entertaining. Prime Bathurst & Lawrence location, steps to transit, shopping, groceries and places of worship. Includes 2 parking spaces and a locker. Sold “as-is, where-is”. Seller does not warrant condition of appliances.
This is a common note that can be displayed on all properties but controlled from one simple option.
Immerse yourself in the captivating ambiance of our properties. Book a personalized tour to explore the exquisite beauty and unique features of our property.
Our knowledgeable staff will guide you through the property, answering any questions you may have.
$525,000.00
Added: April 13, 2026
$799,900.00
Added: April 10, 2026
$435,000.00
Added: April 16, 2026
Owning a home is a keystone of wealth… both financial affluence and emotional security.
Suze Orman