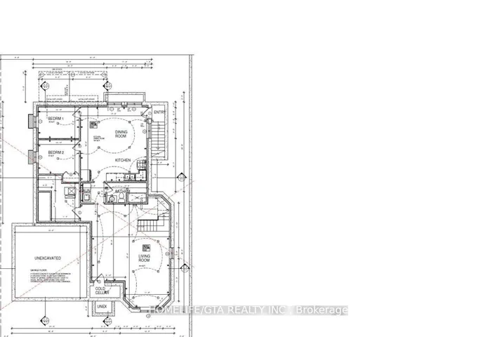
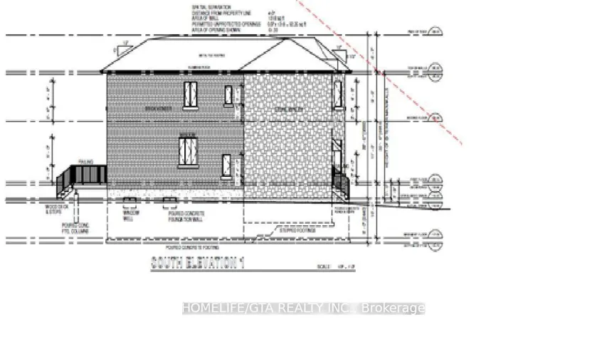
Prime Development Opportunity – 400 Manse Road. An Exceptional opportunity to build a luxury custom home in a desirable and established neighbourhood. This newly severed premium lot measures approximately 50 X150 Ft and is being sold with architectural drawings for spacious custom residence, allowing the next owner to bring a remarkable vision to life. The property had already received city-approved severance and development approvals, saving month of planning, design, and approval time. Builders can move forward quickly and begin construction without unnecessary delays. Surrounded by quality homes and located close to schools, parks, shopping and transit, this property offers outstanding value and potential for builders, investors or end users looking to create a luxury custom home. A rare opportunity to secure a ready-to-build lot in a sought-after neighbourhood. Important Note: Two severed, equal-size lots available under separate MLS listings (400 and 402 Manse Road). Rare opportunity to purchase one or both properties. A renovated 4 + bedroom home with large, spacious living area is currently located on the properties. Buyer purchasing both lots may keep the home as a rental or holding property.
This is a common note that can be displayed on all properties but controlled from one simple option.
Immerse yourself in the captivating ambiance of our properties. Book a personalized tour to explore the exquisite beauty and unique features of our property.
Our knowledgeable staff will guide you through the property, answering any questions you may have.
$799,000.00
Added: March 23, 2026
Owning a home is a keystone of wealth… both financial affluence and emotional security.
Suze Orman