8 Valley Vista Drive
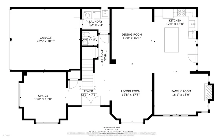
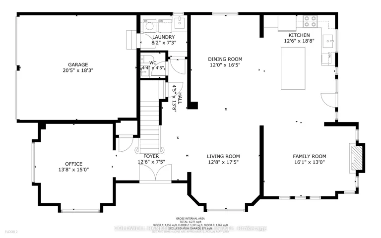
Welcome to this impeccably maintained and tastefully upgraded 4+1 bedroom, 5-bathroom executive home, built in 2006 by H&R Developments and thoughtfully enhanced ever since by it’s One Owner. Set on one of the largest lots in the community, this property offers exceptional living space inside and out, with a beautifully finished builder-completed basement and modern upgrades throughout. The open-concept main floor is bright and inviting, featuring engineered wood flooring (2023), upgraded pot lights, and a recently renovated main-floor library/office – perfect for working from home. The gourmet kitchen was updated in 2023 with contemporary finishes, seamlessly connecting to the spacious family and dining areas. Upstairs, the double-door entry to the primary bedroom reveals an expansive retreat with two separate walk-in closets and a luxurious ensuite showcasing marble tile and a frameless glass shower. A built-in desk with bookshelves enhances the 2nd floor office nook – ideal for study or workstation needs. The basement offers fantastic additional living space with laminate flooring, one bedroom, a full bathroom, cold storage, additional storage rooms and a dedicated wine cellar complete with built-in cabinetry and ceramic flooring. Outdoor features include a fully fenced backyard, a heated slate shingle roof system on the front porch. The double garage offers inside access through the laundry/mudroom. Recent improvements such as new asphalt shingles (2023) ensure peace of mind and longevity. Located just minutes from major highways, key arterial routes, public transit, and top-ranked Public, Catholic, and French Immersion schools, this home delivers convenience, comfort, and unmatched value. A rare opportunity to own a premium, meticulously maintained home in a highly desirable neighbourhood – Truly a MUST SEE!
This is a common note that can be displayed on all properties but controlled from one simple option.
Immerse yourself in the captivating ambiance of our properties. Book a personalized tour to explore the exquisite beauty and unique features of our property.
Our knowledgeable staff will guide you through the property, answering any questions you may have.
$1,899,000.00
Added: November 21, 2025
$1,599,000.00
Added: November 14, 2025
$3,888,000.00
Added: January 5, 2026
Owning a home is a keystone of wealth… both financial affluence and emotional security.
Suze Orman