42 Courtland Crescent
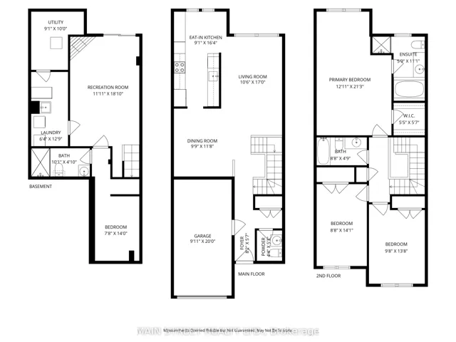
Welcome to this spacious 4 bedroom freehold townhome with 4 bathrooms and a professionally finished basement with W/O to backyard patio. This home has been recently painted throughout. Pay no expensive monthly condo maintenance fees or no monthly equipment rental fees with this freehold townhome. Situated in a highly desirable Harvest Hills community. This home has over 2000 sq. ft. of total living space. Spacious Premier bedroom includes a 4 piece ensuite and a large walk-in closet. Newly built basement bedroom also includes a 3 pce ensuite. Upgraded kitchen includes stainless steel appliances, new s/s sink, 1 year old dishwasher, microwave/hood fan combo and a quartz kitchen counter top. Also includes a convenient garage entry door into the foyer, an EV wall socket charger installed in the garage, three bedroom ceiling fans that are 3 years old, wired network on main level and basement and central vac. Close to schools, park, shopping, restaurants, public transportation and GO train. You won’t want to miss this one!
This is a common note that can be displayed on all properties but controlled from one simple option.
Immerse yourself in the captivating ambiance of our properties. Book a personalized tour to explore the exquisite beauty and unique features of our property.
Our knowledgeable staff will guide you through the property, answering any questions you may have.
$979,990.00
Added: January 2, 2026
$1,099,000.00
Added: April 11, 2026
$839,999.00
Added: April 10, 2026
Owning a home is a keystone of wealth… both financial affluence and emotional security.
Suze Orman