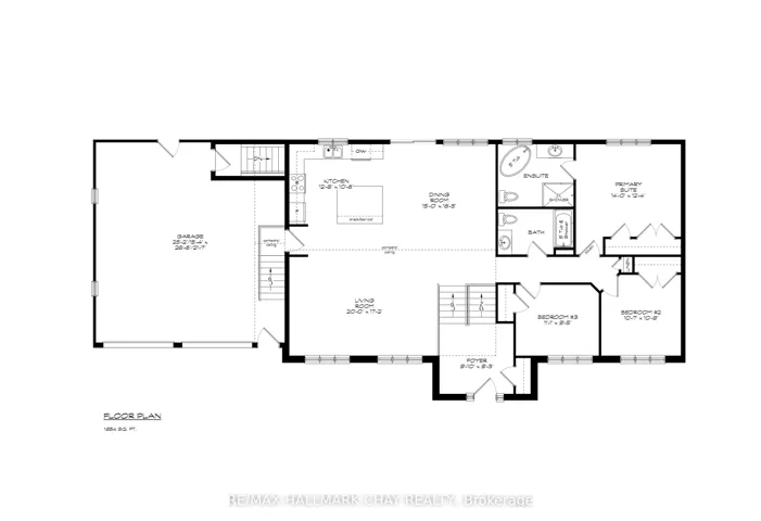
Welcome to 3 Stokes Drive in the charming community of Minesing, Springwater. This beautiful new home offers modern elegance in a peaceful, family-friendly neighborhood just minutes from Barrie. Enjoy small-town serenity surrounded by rolling countryside and the iconic Minesing Wetlands, with easy access to Highway 26.Inside, the spacious open-concept layout features gleaming hardwood floors and flows effortlessly for everyday living and entertaining. The well-appointed kitchen boasts stainless steel appliances, quartz countertops, generous workspace, and plenty of storage – perfect for home-cooked meals and family gatherings. On the Main floor you’ll find three oversized bedrooms, including a luxurious primary suite with spa-like ensuite. Elegant hardwood stairs with an oak handrail lead to the unfinished basement for you to put your own personal touch on. The exterior boasts attractive board and batten vinyl siding with a stone skirt and stone-accented front entrance for excellent curb appeal. Quality finishes throughout make this home perfect for families or those seeking a tranquil escape. Don’t miss your chance to own this exceptional property in desirable Minesing.
This is a common note that can be displayed on all properties but controlled from one simple option.
Immerse yourself in the captivating ambiance of our properties. Book a personalized tour to explore the exquisite beauty and unique features of our property.
Our knowledgeable staff will guide you through the property, answering any questions you may have.
$4,195,000.00
Added: December 3, 2025
$1,750,000.00
Added: January 9, 2026
$1,900,000.00
Added: April 16, 2026
Owning a home is a keystone of wealth… both financial affluence and emotional security.
Suze Orman