88 Vista Boulevard
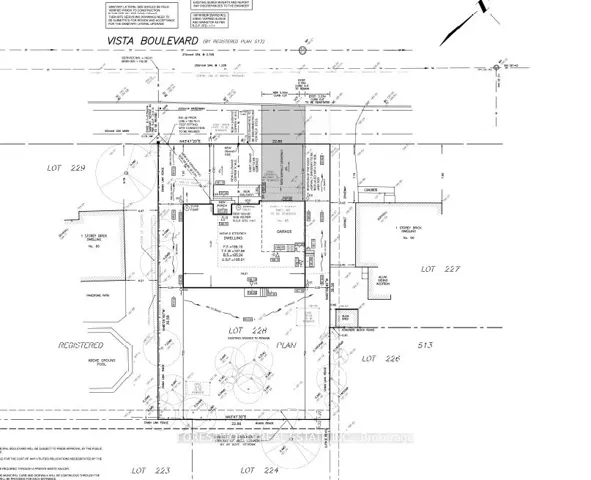
****Skip the Search. Start the Build!!****Rare Find****Largest Lot 75.11 Feet Frontage in A Highly Desired Streetsville! Top Reason to Own This Home is Limitless Possibilities!! Lot Is Flat! No Sidewalks! Envision A Luxurious Estate Or Own a Cozy Bungalow in a Muskoka Like Atmosphere! Mature Pine Trees at The Back of The Lot With All Season Privacy. Location is Unmatched. Stunning Natural View and Steps to Highly Ranked Vista Heights Elementary French Immersion, Streetsville Go Station, Credit Valley Hospital, Shops and Restaurants. No Conservation! It is Perfect for Builders to Create Custom Home. Drawings for Custom House, survey year 2012, Site Plan can be available to the Purchaser Upon Signing Offer. Current bungalow offers 3 bedrooms, 2 full washrooms, separate side entrance to the basement. Hardwood and Ceramic, Carpet Free house. Recent Updates Include Updated Bathroom Main Level, New Windows in the Basement, Newer Roof, Furnace and A/C.** There is possibility of basement in law apartment for the current home. Drawings for basement apartment were prepared and approved by city of Mississauga and Can Be Provided to the Purchaser Upon Signing Offer.
This is a common note that can be displayed on all properties but controlled from one simple option.
Immerse yourself in the captivating ambiance of our properties. Book a personalized tour to explore the exquisite beauty and unique features of our property.
Our knowledgeable staff will guide you through the property, answering any questions you may have.
$1,599,900.00
Added: November 6, 2025
$1,690,000.00
Added: November 16, 2025
$948,000.00
Added: January 21, 2026
Owning a home is a keystone of wealth… both financial affluence and emotional security.
Suze Orman