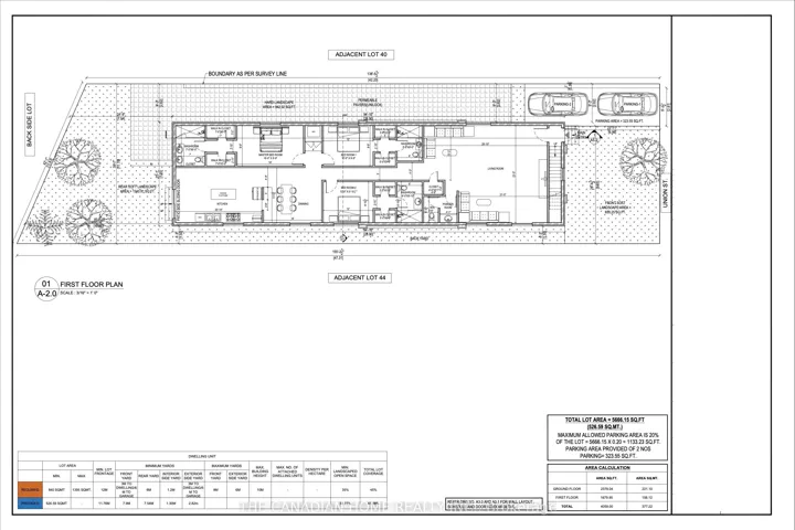
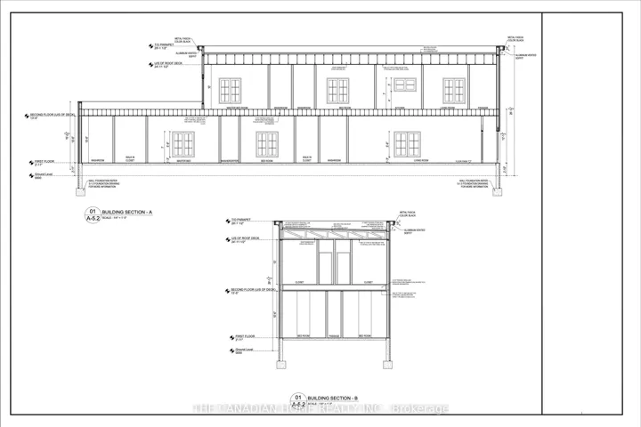
Approved shovel-ready triplex development opportunity in St. Catharines! Calling all investors, builders, and savvy buyers. This is a rare chance to begin construction immediately with an approved triplex permit already in hand, avoiding months of planning delays and significant soft costs. Plans are completed for approximately 3,900-4,000 sqft of total build, designed as three self-contained residential units featuring efficient layouts, multiple washrooms, and modern exterior elevations tailored for strong rental appeal. Ideal for investors seeking long-term hold cash flow, a BRRRR strategy, or builders looking for a ready-to-go project with approvals secured and equally attractive for a buyer looking to live in one unit and rent the other two for supplemental income. Situated in a desirable neighbourhood close to schools, Montessori and childcare centres, parks, public transit, shopping, and everyday amenities, with convenient access to downtown St. Catharines, Brock University, the Pen Centre, and major routes. A turnkey multi-unit opportunity in a growing rental market. Approved architectural plans and building permit are available. Plans are provided for reference only.
This is a common note that can be displayed on all properties but controlled from one simple option.
Immerse yourself in the captivating ambiance of our properties. Book a personalized tour to explore the exquisite beauty and unique features of our property.
Our knowledgeable staff will guide you through the property, answering any questions you may have.
$620,000.00
Added: November 25, 2025
$1,099,998.00
Added: November 7, 2025
$1,489,000.00
Added: January 26, 2026
Owning a home is a keystone of wealth… both financial affluence and emotional security.
Suze Orman