242 Lakeport Road
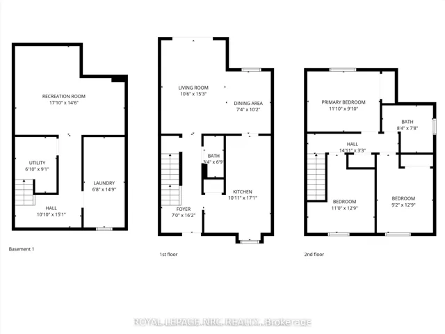
Welcome to this charming 1200 square foot end unit townhome conveniently located in Century Village. Featuring 3 well sized bedrooms and 1.5 bathrooms. The main floor offers a beautifully updated walkthrough kitchen with extra cabinets, adjacent open dining area, a well proportioned living room with patio door access to your private rear patio and an updated 2 piece bathroom. The upper floor includes 3 good sized bedrooms and a fully renovated bathoom with walk-in shower. The modern fully finished lower level includes a spacious recroom, laundry and the utility room. Parking is conveniently located right in front of this unit. The affordable $360.00 condominium fees include water, cable, common area maintenance and condominium insurance. Owner averages under $100/month for gas & hydro. Century Village is located in a desirable North end a short distance to Port Dalhousie’s Lakeside Park beach, Waterfront walking trail, Port Weller’s Sunset beach, the Welland Canal trail and many other great amenities like shopping and easy QEW access.
This is a common note that can be displayed on all properties but controlled from one simple option.
Immerse yourself in the captivating ambiance of our properties. Book a personalized tour to explore the exquisite beauty and unique features of our property.
Our knowledgeable staff will guide you through the property, answering any questions you may have.
$1,050,000.00
Added: December 3, 2025
$728,200.00
Added: November 28, 2025
$1,075,000.00
Added: January 23, 2026
Owning a home is a keystone of wealth… both financial affluence and emotional security.
Suze Orman