215 Glenridge Avenue
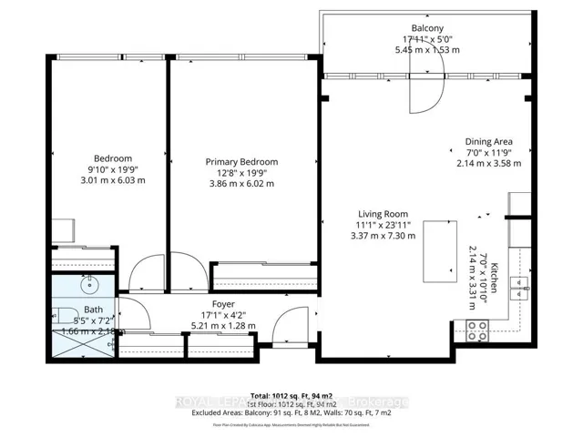
Welcome to Glencourt Place, a well-managed building in a convenient south St. Catharines location, just minutes to the Pen Centre, Brock University, walk-in clinic, restaurants, grocery stores and many everyday amenities, with transit at your doorstep. The building offers a balanced community, from students to retirees. This bright 2-bedroom suite has been thoughtfully updated to create an open, functional layout, with the kitchen open to the living area and enhanced with a central island, creating effortless flow for daily living and entertaining. The living space extends to a generous 18′ x 5′ balcony. Two spacious bedrooms offer ample closet space, plus an oversized hallway closet for additional storage. An updated bathroom with newer shower and toilet completes the interior improvements. The building has benefited from extensive updates, including windows, balcony doors and railings, common area décor, and elevators (2017), along with more recent improvements to the lobby, hallways, parking deck, outdoor pool, lighting, and laundry facilities. Bell Fibe service is available, and a dedicated live-in superintendent ensures attentive management. Condo fee of $682 includes heat, hydro, and water (TV/internet and parking extra). Amenities: outdoor pool, party/social room, laundry facilities, bike storage, and ample visitor parking. Underground parking is $25/month; outdoor $20/month. This is an ideal option for downsizers, first-time buyers, or investors, offering uncomplicated, easy living at an exceptional price.
This is a common note that can be displayed on all properties but controlled from one simple option.
Immerse yourself in the captivating ambiance of our properties. Book a personalized tour to explore the exquisite beauty and unique features of our property.
Our knowledgeable staff will guide you through the property, answering any questions you may have.
$359,000.00
Added: January 9, 2026
$1,598,000.00
Added: January 26, 2026
$265,000.00
Added: April 8, 2026
Owning a home is a keystone of wealth… both financial affluence and emotional security.
Suze Orman