3987 Montcalm Crescent
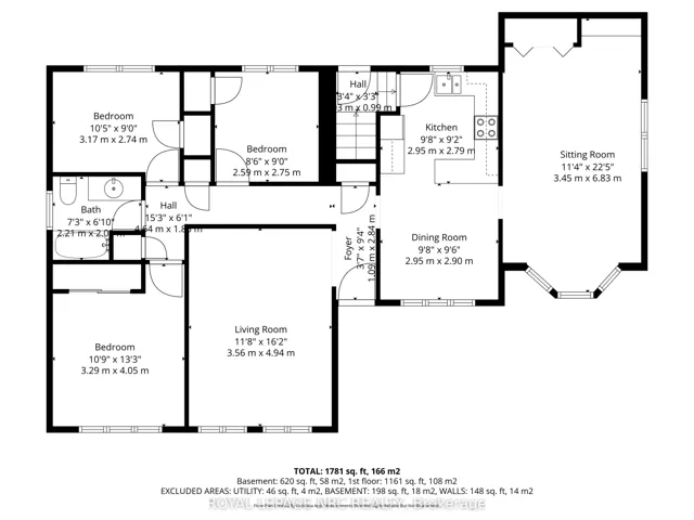
This brick bungalow, located in the quaint Village of Chippawa, is just a short walk to the boat launch park on the Welland River, or as the locals like to call it…the Crick. The garage has been converted into another room which could be used as a main floor family room or a 4th bedroom or it could be converted back to a garage depending on your needs. The 70×120 lot with it’s mature trees makes a beautiful private backyard with a separate entrance that goes straight down to the partially finished basement. There are 2 bathrooms and the appliances are included. There is even a hook up for a gas stove behind the current electric stove for those “chef” type people. This home has been well loved and updated over the years. They include soffits facia and eaves, roof including the wood under the shingles, windows, blown in insulation in the attic. There is a reverse osmosis system and water softener. The rec room has a wet bar which makes it convenient for the plumbing of an extra kitchen. Four years ago the wood porch deck as well as the front door, screen door and upstairs inside doors were replaced. There is also a gas hook up for the bbq in the backyard and a gas fireplace in the rec room. This home has great bones and in a fabulous area. Great for the retiree or first time buyer or even to convert into a separate unit for the inlaws when they come to visit. Let your imagination lead you. This is a great house!! And the dog will love the fenced in backyard…the kids will like it too 🙂
This is a common note that can be displayed on all properties but controlled from one simple option.
Immerse yourself in the captivating ambiance of our properties. Book a personalized tour to explore the exquisite beauty and unique features of our property.
Our knowledgeable staff will guide you through the property, answering any questions you may have.
$1,179,000.00
Added: December 29, 2025
$599,900.00
Added: December 5, 2025
$2,399,000.00
Added: December 5, 2025
Owning a home is a keystone of wealth… both financial affluence and emotional security.
Suze Orman