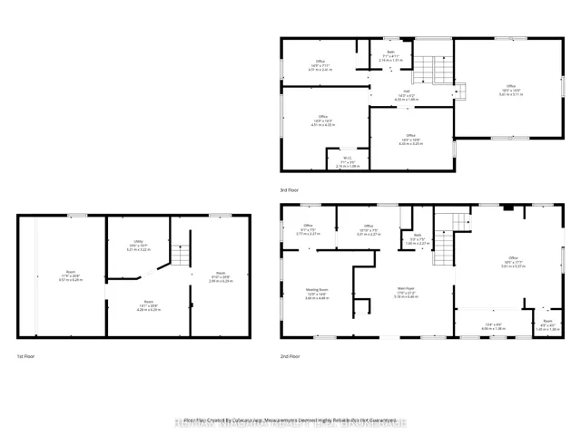
Prime opportunity to acquire a downtown property offering a modern, turn-key mixed-use building with exceptional street exposure, rare private on-site parking, and outstanding long-term development potential. Ideally suited for investors or owner-operators, this versatile asset combines strong commercial and residential components with flexible M2 zoning, supporting a wide range of uses including commercial, residential, or mixed-use development. The property features a welcoming wrap-around porch that enhances curb appeal, while the interior offers a functional, adaptable layout suitable for a variety of professional uses. Multiple exterior entrances provide excellent flexibility for single or multi-tenant configurations, offering exceptional accessibility and future adaptability. Offering approximately 2,235 sq. ft. of finished above-grade space plus an additional 800 sq. ft. in the basement, this property presents an excellent opportunity to customize to your needs. The main floor features a spacious open-concept co-working office, two private offices, a boardroom-style office, and an inviting front foyer complete with a coffee station and a convenient 2-piece washroom. The upper level includes an oversized executive office, three additional private offices, and a well-appointed 3-piece bathroom. Positioned on a high-traffic downtown corridor surrounded by established businesses, restaurants, cafes, and local amenities, the property benefits from consistent exposure and strong foot traffic. Just steps from the Meridian Centre, First Ontario Performing Arts Centre, transit hub, GO Station, and with quick access to Highway 406 and the QEW, the location offers unmatched connectivity across the region. Whether expanding an investment portfolio or securing a strategic location for a growing business, this property delivers exceptional visibility, versatility, and future development potential in one of the city’s most desirable downtown settings.
This is a common note that can be displayed on all properties but controlled from one simple option.
Immerse yourself in the captivating ambiance of our properties. Book a personalized tour to explore the exquisite beauty and unique features of our property.
Our knowledgeable staff will guide you through the property, answering any questions you may have.
$620,000.00
Added: November 25, 2025
$1,099,998.00
Added: November 7, 2025
$1,489,000.00
Added: January 26, 2026
Owning a home is a keystone of wealth… both financial affluence and emotional security.
Suze Orman