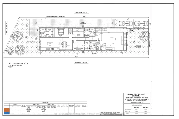
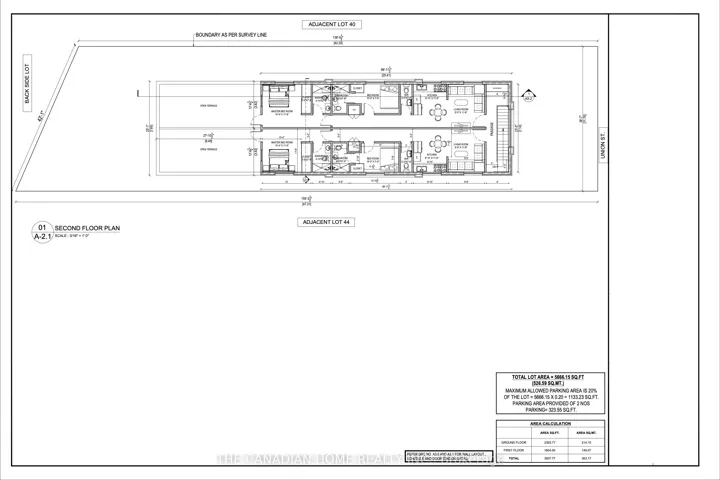
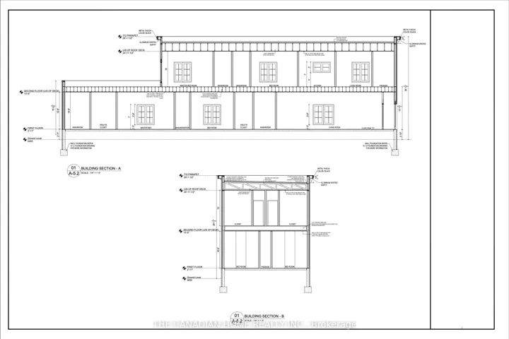
Approved shovel-ready triplex development opportunity in St. Catharines! Calling all investors,builders, and savvy buyers. This is a rare chance to begin construction immediately with anapproved triplex permit already in hand, avoiding months of planning delays and significantsoft costs. Plans are completed for approximately 3,900-4,000 sqft of total build, designed asthree self-contained residential units featuring efficient layouts, multiple washrooms, andmodern exterior elevations tailored for strong rental appeal. Ideal for investors seekinglong-term hold cash flow, a BRRRR strategy, or builders looking for a ready-to-go project withapprovals secured and equally attractive for a buyer looking to live in one unit and rent theother two for supplemental income. Situated in a desirable neighbourhood close to schools,Montessori and childcare centres, parks, public transit, shopping, and everyday amenities, withconvenient access to downtown St. Catharines, Brock University, the Pen Centre, and majorroutes. A turnkey multi-unit opportunity in a growing rental market
This is a common note that can be displayed on all properties but controlled from one simple option.
Immerse yourself in the captivating ambiance of our properties. Book a personalized tour to explore the exquisite beauty and unique features of our property.
Our knowledgeable staff will guide you through the property, answering any questions you may have.
$620,000.00
Added: November 25, 2025
$1,099,998.00
Added: November 7, 2025
$1,489,000.00
Added: January 26, 2026
Owning a home is a keystone of wealth… both financial affluence and emotional security.
Suze Orman