205 Mitchell Street
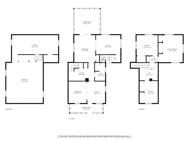
Welcome to this spacious 3 bedroom home in Port Colborne offering approximately 1,672 SF of above grade living space, larger than it appears and full of potential. Inside, you’ll find multiple living areas that provide flexibility for growing families, work-from-home setups, or simply having room to spread out. The enclosed front porch offers a welcoming entry and leads into a bright living room and generous dining space, creating a comfortable flow for everyday living and entertaining. The kitchen provides ample cabinetry and storage, while recent updates, including newer flooring and a recently installed boiler heating system, offer added peace of mind on the mechanical side. At the rear of the home, a bright three-season room extends your living space and overlooks the backyard, an ideal spot for morning coffee, summer meals, or a quiet place to unwind. Outside, the spacious yard offers plenty of room for kids, pets, gardening, or entertaining, along with two storage sheds for added functionality. Located just minutes from Nickel Beach and Lake Erie and close to the Friendship Trail, parks, schools and local amenities, this home offers a great opportunity for buyers looking for space, value, and the ability to make it their own over time. Some images have been virtually staged.
This is a common note that can be displayed on all properties but controlled from one simple option.
Immerse yourself in the captivating ambiance of our properties. Book a personalized tour to explore the exquisite beauty and unique features of our property.
Our knowledgeable staff will guide you through the property, answering any questions you may have.
$399,999.00
Added: January 15, 2026
$599,900.00
Added: January 22, 2026
$569,900.00
Added: April 9, 2026
Owning a home is a keystone of wealth… both financial affluence and emotional security.
Suze Orman